Proyectos residenciales
Vivienda Mondelo
Valeria del Mar, partido de Pinamar
-En proceso-
Superficie cubierta a construir: 155,40 m2
Superficie semi-cubierta a construir: 23,70 m2
En conjunto con mi colega Martin Pindur estamos comenzando con la obra de una vivienda en Valeria del Mar, partido de Pinamar.
La propuesta consiste en una vivienda unifamiliar de uso permanente que se proyecta en sistema WOOD FRAME, prioriza la relación con el entorno natural y la flexibilidad funcional. Se desarrolla en dos niveles, aprovechando al máximo la orientación, la privacidad del lote y las visuales hacia el parque.
El diseño apuesta por una arquitectura contemporánea, de líneas limpias, que dialoga con el bosque y se adapta a la forestación existente. La volumetría se escalona para acompañar el paisaje y generar espacios exteriores de calidad.
La estética general combina rusticidad y contemporaneidad a través del uso de materiales nobles como la madera y la chapa negra, que aportan textura, calidez y sencillez.
La vivienda se piensa como un espacio para disfrutar, vivir y trabajar con libertad, en contacto con la naturaleza.
¡Seguinos en nuestras redes para ver los avances!
















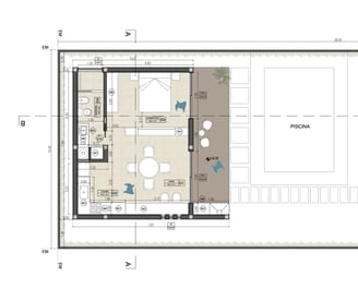
Vivienda Chilón
Los Hornos
-En proceso de obra-
Superficie cubierta a construir: 46 m2
Superficie semi-cubierta a construir: 14 m2
En conjunto con mi colega Martin Pindur estamos comenzando con la obra de una vivienda con quincho y piscina en un barrio de La Plata, Buenos Aires.
La vivienda se plantea en una planta, como un espacio habitable de uso flexible, pensado para adaptarse a distintas etapas.
En una primera instancia funcionará como vivienda principal, y en una segunda etapa pasará a cumplir el rol de quincho, acompañando la futura construcción de la casa al frente en el mismo lote.
El diseño apuesta por una arquitectura clara, funcional y permeable, que potencia la relación con el entorno y ofrece calidad espacial a través de una organización eficiente.
La propuesta apuesta por líneas simples, tonos neutros y abundante luz natural. El resultado es un espacio que transmite calma, frescura y una modernidad sutil, sin rigidez, en sintonía con una estética serena y acogedora.
¡Seguinos en nuestras redes para ver los avances!




















Vivienda Unifamiliar
Renderizados exteriores de Vivienda Unifamiliar en La Plata, realizada en conjunto con mi colega Lucía Castaño.
La visualización busca resaltar la arquitectura, los materiales y la interacción con el entorno, utilizando técnicas avanzadas de iluminación y realismo para lograr una presentación impactante y efectiva.












Vivienda BELGRANO
Proyecto de remodelación de vivienda y obra nueva de un quincho + Diseño Exterio
En colaboración con la Arquitecta Eugenia Luna.
Se realizó la remodelación integral de un quincho y el diseño exterior del patio de una vivienda familiar. El objetivo fue transformar estos espacios en áreas funcionales y estéticamente atractivas, mejorando la conexión entre el interior de la vivienda y su entorno exterior.
El quincho fue diseñado desde cero, buscando optimizar el uso del espacio y adaptarlo al estilo de vida familiar. Con un diseño contemporáneo y materiales de alta calidad.
Además, el proyecto incluyó el diseño exterior del patio, con espacios pensados para el disfrute al aire libre. Se trabajó en la integración de vegetación, áreas de sombra y pavimentos adecuados, logrando una atmósfera relajante y armoniosa.
La presentación del proyecto al cliente incluyó planos detallados, visualizaciones 3D y explicaciones claras sobre las mejoras y cómo estos espacios renovados optimizarán la vida diaria en la vivienda.






Vivienda Sur
En colaboración con la Arquitecta Antonella Rodriguez
Espacios cálidos y funcionales con materiales naturales, texturas orgánicas y una paleta neutra inspirada en el entorno. Iluminación natural, mobiliario a medida y detalles artesanales crean una atmósfera acogedora y sofisticada. Diseño que invita a habitar y sentir.
✔ Materiales nobles y texturas envolventes
✔ Iluminación natural y cálida
✔ Mobiliario y detalles personalizados
✔ Integración fluida entre espacios






Diseño exterior de vivienda en San Diego, Estados Unidos
Rediseñamos este patio en un refugio al aire libre, combinando madera y tonos neutros para lograr un estilo rústico sofisticado. Destacan la chimenea, la cocina cubierta con comedor y la piscina con deck, creando espacios acogedores y funcionales.








Diseño exterior de vivienda en Los Ángeles, Estados Unidos
Hemos transformado este patio trasero en un espacio digno de su impresionante vista al océano. Cada rincón ha sido diseñado para maximizar su funcionalidad, creando un ambiente acogedor y sofisticado que se adapta perfectamente a su entorno. Nos enfocamos en aprovechar cada metro cuadrado, logrando un equilibrio entre estética y utilidad.


Contacto
Conéctate con nosotros para más información.
comunicate
suscribite
lfarquitecta@gmail.com
+54 (011) 3378 6421
© 2025. All rights reserved.
